98± Recreation Lots on World Famous Weiss Lake at Waterhouse Cove Cedar Bluff, AL Auction
Saturday, April 19, 2025 at 10:00 am Central — Auction Site: 285 County Road 115 Cedar Bluff, AL
Cedar Bluff, Cherokee County, AL
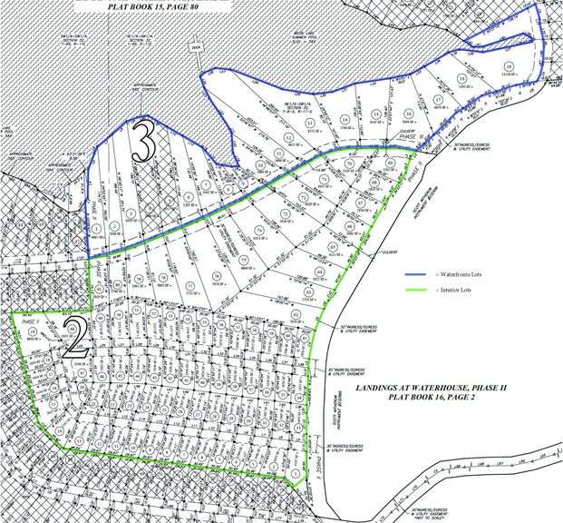
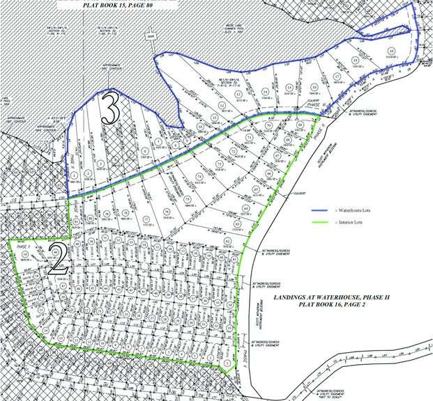
The Landings at Waterhouse
98± Recreational Lots on World Famous Weiss Lake at Waterhouse Cove
County Water—Boat Ramp—Deep Water
Lots located off Cherokee Co Rd #115 just across the AL/GA Line, 2 miles from Hwy #9
Auction to be conducted ON-SITE under the DEMPSEY Tent
The Lots will be offered in Tracts, Combinations of Tracts or as a Whole.
Discover Your Slice of Paradise: The Landing at Waterhouse
Nestled along the serene shores of the world-renowned Weiss Lake, The Landing at Waterhouse offers an exclusive opportunity to embrace waterfront living at its finest. Situated in Cedar Bluff, Cherokee County, Alabama, this premier development comprises a plethora of recreation lots, each promising a coveted blend of natural beauty and recreational bliss.
Property Highlights:
- Prime Location: Located on County Road #115, just 2 miles from Hwy #9, The Landing at Waterhouse enjoys a privileged position along the tranquil shores of Weiss Lake. This sought-after area boasts easy accessibility while maintaining a serene and secluded atmosphere.
- Waterfront Bliss: Dive into waterfront living with 17± pristine waterfront lots, offering unparalleled views of Weiss Lake’s shimmering waters. Experience the joys of lakeside living, from breathtaking sunsets to invigorating water activities right at your doorstep.
- Lake Access: Additionally, 81± off-water lots provide convenient lake access via a common area complete with a dock and boat ramp. Whether you’re an avid angler, boating enthusiast, or simply seeking a peaceful retreat by the water, these lots offer the perfect gateway to Weiss Lake’s endless recreational opportunities.
- County Water Access: Enjoy the convenience of county water available to each tract, ensuring a reliable and hassle-free water supply for your recreational haven.
- Flexible Purchasing Options: The lots at The Landing at Waterhouse will be offered in tracts, combinations of tracts, or as a whole, providing flexibility to accommodate various preferences and investment strategies.
- [Click Here] for Protective Covenants and Restrictions
Unparalleled Recreation:
Indulge in the ultimate lakeside lifestyle with access to world-class fishing, boating, swimming, and a myriad of water activities. Whether you’re casting a line for prized catches, cruising along the tranquil waters, or simply basking in the natural beauty that surrounds you, The Landing at Waterhouse promises endless opportunities for relaxation and adventure.
Embrace the Dream:
With its excellent waterfront lots, water access, and proximity to recreational amenities, The Landing at Waterhouse presents a rare chance to own a piece of lakeside bliss on Weiss Lake. Whether you’re seeking a weekend retreat or an investment opportunity, this exceptional development invites you to turn your waterfront dreams into reality. Schedule your viewing today and embark on a journey to lakeside living at its finest.
At 9:42 AM on Auction Day (April 19th), Please enter the live auction by clicking the blue enter auction box in the light blue box. If you can't hear the auction, please click view live stream above lot picture.
To protect the integrity of the auction, Registration for Online Bidding will cease 30 minutes prior to the Live Auction starting.
[Click Here] for Protective Covenants and Restrictions


















































